Hi!您好,欢迎来到艾搜艾学-sok100 | 五邑地区设计研修基地
当前位置:网站首页 > 五邑地区设计研修基地 > 新闻资讯 > 江门十大靠谱的全屋定制设计师培训机构名单一览
机构:五邑地区设计研修基地发布时间:2023-04-20 10:10:38 热度:325
江门十大靠谱的全屋定制设计师培训机构名单一览?全屋定制设计师是近几年兴起的一个职业,源于定制家具在市场中的需求与普及,这部分职业人群基本是从CAD制图师或者说是家具生产拆单师转变而来,从幕后逐渐走向市场前端。定制家具行业得到了全所未有的发展,就业比较灵活,薪资也十分可观,江门全屋定制设计师培训机构哪家实力强?小编整理了江门十大靠谱的全屋定制设计师培训机构名单一览,供您参考!

定制家具设计师当接到一位需求客户时,往往是根据客户的需求来制定方案,随着这个领域的高速发展,大部分厂家都增设了模块化的软件,设计师只需将模块放置到空间便形成了全屋的家具定制方案,几乎不需要自己另行设计,全部按照厂家的标准来生成,因为这样才有助于工厂的批量化生产。关于十大全屋定制设计师培训机构,小编整理名单如下:
(以上排名仅供参考,不分先后顺序)

我们是以就业为导向,开设艺术设计行业热门专业课程,培养市场紧缺型人才,开设热门专业,包括室内设计、平面艺术设计、网店美工与运营、网页网站设计师、机械绘图、三维机械设计等专业课程。
本基地自成立以来遵循科学的教学理念,不断完善教学方法,坚持以培养专业技能人才为中心,重视学生的专业知识、实际操作能力。在科学合理编排教程的基础上进行规范化、系统化教育,让学员毕业后能迅速适应实际工作环境,赢得企事业单位的高度赞 誉。

一、招生对象:零基础学习,想轻松就业,在校学生,在职提升、家庭主妇、设计爱好、想转行、提高就业机会都适合你!
二、课程目的:通过系统、专业的学习,让学员学习并掌握家居设计的技巧,培养具有现代设计思想和理念,富有想象力、创造力以及艺术素养的专业设计人才。毕业学生可在家具设计公司、全屋家具设计公司、工装家装设计公司和各文化事业单位从事展示设计、展台设计、家具设计等工作。
三、学员参加相应考试,考试合格后可获得下列证书:
1.江门开放大学职业技能培训课程证书 ;
2.美国Autodesk公司AutoCAD、3Dmax认证证书; (选考)
3.ACAA室内设计师认证(选考)

一、cad基础知识
菜单栏.绘图栏.修改栏,命令栏辅,辅助选项,鼠标的应用。实战案例:门平面图,立面图的绘制,简单卧室墙体框架的绘制。
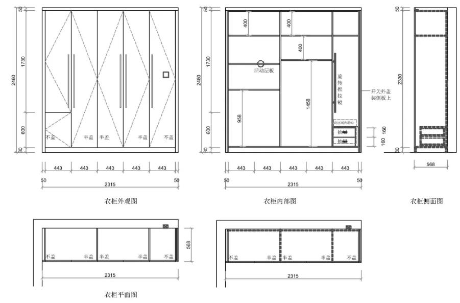
二、衣柜设计
1.全屋定制衣柜风格和人体工程学:板材理论知识,衣柜各部分名称,衣柜平面布局类型,常见衣柜风格讲解。
2.轻奢风格掩门衣柜:侧板和墙体的收口方式,顶封板踢脚线的外观形式,掩门衣柜柜门的划分。各种衣物所占用的尺寸。试衣镜的设计。内抽屉设计注意事项;背板尺寸,背板卡槽工艺,抽屉侧面,踢脚线内部安装结构。
3.欧式掩门衣柜绘制:嵌入式柜体与墙体的收口。罗马柱,顶角线的规格,裤架的设计。
4.推拉门衣柜绘制:推拉门的个数与重合位置注意事项,石膏线和衣柜3种收口方式。
5.步入式衣柜:衣帽间设计和功能分区、转角柜设计和五金配件解析。
三、橱柜设计
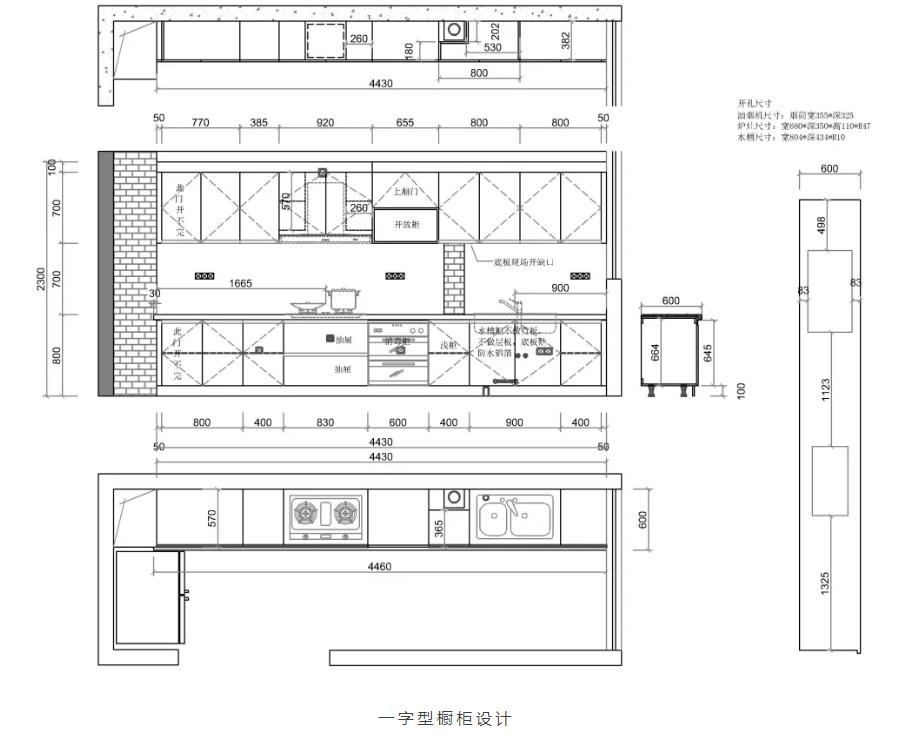
1.厨房测量方法和专业术语介绍:橱柜的类型,橱柜的组成部分,橱柜的风格,橱柜的人体工程学和电器认识。
2.一字型橱柜设计:测量草图的绘制,水电位的布局思路,橱柜台面和柜体现场收口,布局的动线,地柜水槽柜的关系。吊柜油烟机和灶台柜的关系,锅碗篮设计注意事项和尺寸,橱柜生产图的绘制。
3.L型橱柜设计:集成灶具的设计,L型橱柜的转角处理,吊柜设计事项和取尺。
四、其它柜体设计
1.鞋柜设计:鞋柜和障碍物的收口,鞋柜常见方案的优势劣势,鞋柜的结构布局,层板倾斜角度要求。
2.酒柜设计:灯线的预留,玻璃门的画法,45° 斜酒格的画法,酒架的画法。
3.书柜书桌设计:书桌和窗户关系,书柜和墙体收口,书桌书架常见布局,纸张书籍尺寸和内空高度要求。
4.榻榻米设计:榻榻米,书柜,衣柜如何一起布局。榻榻米和书柜衣柜的收口,榻榻米立面和外观设计思维,榻榻米内部结构和五金要求。
4.楼梯柜绘制:柜体边缘与楼梯底部常用收口方式利弊,掩门和抽拉柜门的画法。柜体板材对于斜边的收口方式。抽拉柜体滑轨的设计。

以上是小编为大家介绍的关于江门十大靠谱的全屋定制设计师培训机构名单一览的相关内容,想要了解更多全屋定制设计师培训的信息,可咨询在线老师。